| Pos. | Bezeichnung | Ersatzteilnummer | |
| - | B & S Motor 190 ccm | 2000401 |
| - | HONDA Motor GCV, 135 ccm | 2000496 |
| - | HONDA Motor GXV, 140 ccm | 2000492 |
| - | B & S Motor 190 ccm | 2000425 |
| - | B & S Motor 190 ccm | 2000494 |
| - | KOMBISCHLUESSEL21+SHR.DRE.6 ZN | 0080487 |
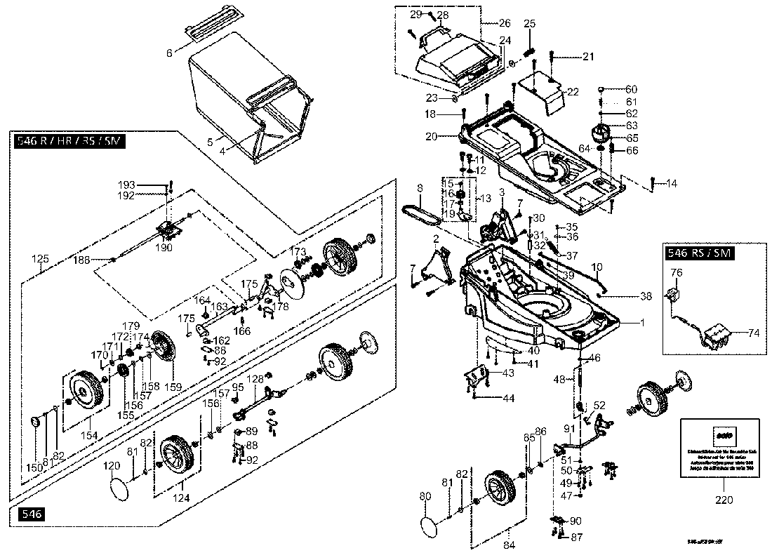
| 1 | RASENMAEHERGEHAEUSE | 5100170 |
| 2 | Holmhalter, rechts | 5074901 |
| 3 | Holmhalter, links | 5074900 |
| 4 | Rahmen | 5300665 |
| 5 | Grasfangsack | 5900805 |
| 6 | Abdeckung | 5900774 |
| 7 | Linsenschraube 6x35 | 0018372 |
| 8 | KEILRIEMEN 8X5X750 | 0057201 |
| 10 | VERB.STANGE 1 | 5036384 |
| 11 | ZYL.BL.SHR.5,5X25 7971C.ZN.GB. | 0010415 |
| 12 | Scheibe 5,3 mm | 0030102 |
| 13 | Riemenspanner, kompl. | 5300530 |
| 14 | LI.SHR.5X18KTKX T25 | 0018258 |
| 15 | SI.RING10X1 471 | 0055102 |
| 16 | SPANNROLLE | 5300585 |
| 17 | RING10,4X14X7DIST. | 0033245 |
| 18 | LI.SHR.5X30KTKX T25 | 0018275 |
| 19 | HEBEL SPN. | 5300518 |
| 20 | HAUBE | 5073510 |
| 21 | LI.SHR.5X18KTKX T25 | 0018258 |
| 22 | DECKEL | 5073509 |
| 23 | SI.SCHEIBE8F12/6780 581 | 0055244 |
| 24 | ACHSE 8X337 | 5031266 |
| 25 | FEDER 3X12 DREH. | 0073299 |
| 26 | | 5300552 |
| 28 | Griff, schwarz | 5074562 |
| 29 | LI.SHR.5X18KTKX T25 | 0018258 |
| 30 | Linsenschraube 5x45-KT | 0018282 |
| 31 | Scheibe 5,3 mm | 0030102 |
| 32 | | 5035247 |
| 35 | Linsenschraube 5x16 mm | 0018274 |
| 36 | SCHEIBE5,3X20X2 | 0031435 |
| 37 | FEDER 2X12X115 ZUG. | 0071214 |
| 38 | Sicherungsscheibe 6x0,2 DIN 6760 | 0055257 |
| 39 | Scheibe 6,4 mm <- ) | 0030100 |
| 40 | ABDECKBLECH | 5042735 |
| 41 | LI.SHR.5X18KTKX T25 | 0018258 |
| 43 | GRASFUEHRUNGSBLECH | 5043362 |
| 44 | LI.SHR.5X18KTKX T25 | 0018258 |
| 46 | SCHEIBE10,2X30X1,5 AN. | 0031497 |
| 47 | Scheibe 10x16x1,2 DIN 988 | 0031227 |
| 48 | Gewindespindel T14x2 | 5800271 |
| 49 | LI.SHR.5X18KTKX T25 | 0018258 |
| 50 | FUEHRUNGSBLECH | 5043356 |
| 51 | SI.SCHEIBE7 6799 MAGAZ. | 0055154 |
| 52 | VERB.STANGE 2 | 5036376 |
| 60 | STOPFEN M16X1,5F111 VERSCHL. | 5074375 |
| 61 | ZYL.SHR.M6X16KXRI.T25 10.9 | 0018346 |
| 62 | Scheibe 6,4 mm <- ) | 0030100 |
| 63 | VERST.KNOPF | 5074374 |
| 64 | SCHEIBE12,2X26X1 AN. | 0031537 |
| 65 | KUG.8 5401KL.3 | 0052116 |
| 66 | FEDER 1X6,5X18 DRK. | 0070208 |
| 74 | BATTERIE 12 VOLT | 0084572 |
| 76 | LADEGERAET | 7900297 |
| 80 | RADKAPPE 85 ROT | 5074101 |
| 81 | 6KT.SHR.M5X12FLSH.M6SF-TT.WN78 | 0018193 |
| 82 | SCHEIBE5,5X27X1 DRK. | 0031540 |
| 84 | Rad Ø 150 mm | 5300638 |
| 85 | SCHEIBE12X18X1,2 988SS | 0031210 |
| 86 | Tellerfeder 12,5x25x0,7 DIN 2093 | 0072155 |
| 87 | LI.SHR.5X18KTKX T25 | 0018258 |
| 88 | ABDECKUNG ACHS.1 | 5042703 |
| 89 | LAGERSCHALE 10,2 UT. | 5074152 |
| 90 | ABDECKUNG ACHS.2 | 5045666 |
| 90 | ABDECKUNG ACHS.3 | 5045679 |
| 91 | LAGERUNG VORDERRAD. | 5300534 |
| 92 | LI.SHR.5X18KTKX T25 | 0018258 |
| 95 | LAGERSCHALE 10,2 OT. | 5074151 |
| 120 | Radkappe Ø 135 mm | 5074102 |
| 124 | Rad Ø 200 mm | 5300632 |
| 125 | Hinterradachse, kompl. | 5300564 |
| 128 | LAGERUNG HINTERRAD. | 5300535 |
| 150 | RADKAPPE NR. 5600.002.00 | 5074157 |
| 154 | Rad Ø 200 mm | 5300631 |
| 155 | Zahnrad, 28 Zähne, Mod. 2,5 | 5074301 |
| 156 | SCHEIBE12X18X1,2 988SS | 0031210 |
| 157 | Tellerfeder 12,5x25x0,7 DIN 2093 | 0072155 |
| 158 | SCHEIBE12,2X35X0,5 AN. | 0031552 |
| 159 | Abdeckung | 5073630 |
| 162 | LAGERSCHALE 18,2 UT. | 5074125 |
| 163 | Hinterradlagerung, rechts | 5300560 |
| 164 | LAGERSCHALE 18,2 OT. | 5074124 |
| 166 | 6KT.SHR.M6X12FLSH.M6SF-TT | 0018181 |
| 170 | Sicherungsscheibe 9 DIN 6799 | 0055161 |
| 171 | SCHEIBE12,1X30X1,5 AN. | 0031498 |
| 172 | FILZRING 22,5X27X3,5 | 0061353 |
| 173 | Zahnrad, 14 Zähne, Mod. 2,5 mit Freilauf links | 3400226 |
| 174 | SCHEIBE12X18X1,2 988SS | 0031210 |
| 175 | GLEITLAGER12X14X15 | 0053213 |
| 178 | Hinterradlagerung, links | 5300561 |
| 179 | Zahnrad, 14 Zähne, Mod. 2,5 mit Freilauf rechts | 3400225 |
| 188 | SCHEIBE12,2X26X1 AN. | 0031537 |
| 190 | GETRIEBE VS.12X438,5 | 3000208 |
| 192 | Scheibe 5,3 mm | 0030102 |
| 193 | 6KT.SHR.M5X30FLSH.M6SF-TT | 0018180 |
| 220 | Klebeschilder-Set für Baureihe 546 | 5800462 |